Мы используем файлы cookie.
- Построен 1992 г.
- Панельный
- 16 этажей
Продажа квартир по адресу Ногинское шоссе, 10
от 4,5 млн ₽от 116 927 ₽/м²
Московская область, Электросталь, Северный м-н, Ногинское шоссе, 10
Объявления в этом доме

1 из 32
Московская область, Электросталь, Северный м-н, Ногинское шоссе, 10
Арт. 86763953.
Просторная 1-комнатная квартира в Электростали
Адрес: Московская область, г. Электросталь, шоссе Ногинское, д. 10
Квартира, которая сразу располагает
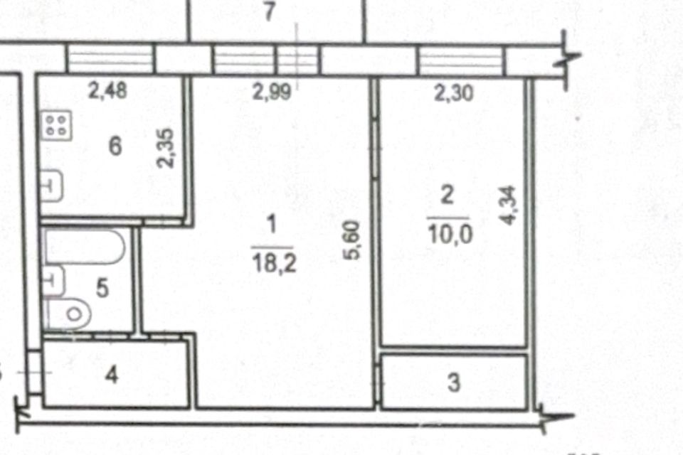
Продаётся уютная и ухоженная 1-комнатная квартира общей площадью 38,4 м², расположенная на удобном высоком первом этаже. Это идеальный вариант как для собственного проживания, так и для инвестиций.
* Кухня увеличенной площади (~8 м²) — редкость для однокомнатных квартир. Здесь легко размещается гарнитур, полноценная обеденная зона и остаётся место для дополнительной мебели.
* Санузел совмещённый, выполнен в плитке, удобный и практичный в использовании.
* На полу современный ламинат, в мокрых зонах плитка. Квартира ухоженная, чистая, аккуратная.
* Мебель остаётся покупателю, что позволяет заехать и жить сразу после сделки, без дополнительных вложений.
* Окна выходят во двор, а качественная шумоизоляция создаёт полное ощущение тишины и уюта.
* Высокий первый этаж — удобно и безопасно: легко заносить покупки, детские коляски и велосипеды, комфортно для пожилых родственников.
Преимущества для повседневной жизни
* Подъезд чистый и ухоженный, на входе установлен пандус — удобно для семей с детьми, маломобильных людей и повседневного быта.
* Во дворе всегда есть свободные парковочные места — редкость для Подмосковья, особенно в больших жилых массивах.
* Район зелёный, благоустроенный и тихий, соседи живут постоянно, атмосфера спокойная и комфортная.
* Вокруг дома расположено несколько современных детских площадок и прогулочных зон — всё рядом, не нужно идти далеко.
Инфраструктура района
Северный микрорайон Электростали — один из наиболее развитых в городе, полностью обеспеченный всеми необходимыми объектами.
* Продуктовые магазины: «Магнит Семейный» и «Перекрёсток» — в пешей доступности.
* Крупные торговые центры: «Ашан», «Глобус», сетевые гипермаркеты — 10–15 минут на машине.
* Образование: рядом несколько детских садов и школ, в том числе СОШ № 11. Всё в шаговой доступности, детям не придётся тратить время на дорогу.
* Медицина: вблизи работают аптеки, поликлиники, городская больница. В городе представлены как государственные, так и частные клиники.
* Отдых и спорт: недалеко расположен Городской парк культуры и отдыха — центр притяжения для жителей Электростали. Здесь проходят праздники, есть аттракционы, зоны для прогулок и отдыха. Также в районе работают фитнес-клубы, спортивные секции и бассейн.
* Социальные и бытовые услуги: рядом почтовые отделения, банки, кафе, сервисные компании — всё, что нужно для повседневной жизни.
Транспортная доступность
Электросталь — город с удобной связью с Москвой и ближайшими районами Подмосковья.
* Электрички: от станции «Электросталь» до Москвы (Курский вокзал) можно доехать всего за 1 час 10 минут.
* Автобус: маршрут № 399 идёт напрямую до метро «Партизанская» (район Измайлово), в пути около 1 часа 40 минут.
* Автомобиль: быстрый выезд на Ногинское шоссе, расстояние до МКАД примерно 35 км.
Хотите найти квартиру в этом доме?
Хотите получать уведомления о новых объявленияхв этом доме?

Объявления в соседних домах
- Московская область, Электросталь, Восточный м-н, улица Захарченко, 7Б
5 594 000 ₽1-комн. кв.50.4 м²13/15 - Московская область, Электросталь, Центральный м-н, проспект Ленина, 38/7
6 000 000 ₽2-комн. кв.59.8 м²5/5 - Московская область, Электросталь, Центральный м-н, улица Маяковского, 8
5 700 000 ₽3-комн. кв.60.5 м²2/4
Характеристики дома
Год постройки1992
Материал стенПанельный
Серия домаi, блочный
Количество этажей16
МусоропроводНа лестничной клетке
Детская площадкаесть
Количество подъездов2
Количество лифтов4
Холодное водоснабжениеЦентральное
Горячее водоснабжениеЗакрытая с приготовлением горячей воды на ЦТП
ВодоотведениеЦентральное
ТеплоснабжениеЦентральное
ЭнергоснабжениеЦентральное
ВентиляцияВытяжная
Тип перекрытийЖелезобетонный
Тип фундаментаБетонные столбы
Класс энергоэффективностиE
Живёте в этом доме?
Есть проблемы в доме? Расскажите о них здесь, чтобы помочь другим людям выбрать хороший дом

🏠 Как купить квартиру по адресу Ногинское шоссе, 10 на сайте Домклик?
- ✔ Выберите предложения с нужным количеством комнат. В этом помогут фильтры каталога.
- ✔ Просмотрите карточки объектов — в них есть подробная информация и фото.
- ✔ Если вы хотите купить квартиру в ипотеку, в личном кабинете можно рассчитать условия и подать заявку — она будет рассмотрена онлайн, ехать в банк не нужно.
- ✔ Свяжитесь с продавцом квартиры по телефону напрямую или зарегистрируйтесь в личном кабинете, чтобы позвонить, не раскрывая свои контактные данные.
- ✔ Если нужного варианта вы не нашли, подпишитесь на обновления, и мы сообщим о новых предложениях.
💸Цены на квартиры
Средняя стоимость , по адресу Ногинское шоссе, 10 составляет: 4 490 000 руб.
- 🟢 Однокомнатные (1-комнатные): 4 490 000 руб.
В каталоге представлены квартиры от 4 490 000 до 4 490 000 руб., площадью от 38 до 38 кв. м. Средняя стоимость квадратного метра недвижимости в данном доме — 116 927 руб.
📚Информация о доме по адресу Ногинское шоссе, 10
Оценить недвижимость поможет информация от пользователей портала: ваш отзыв может быть первым.











